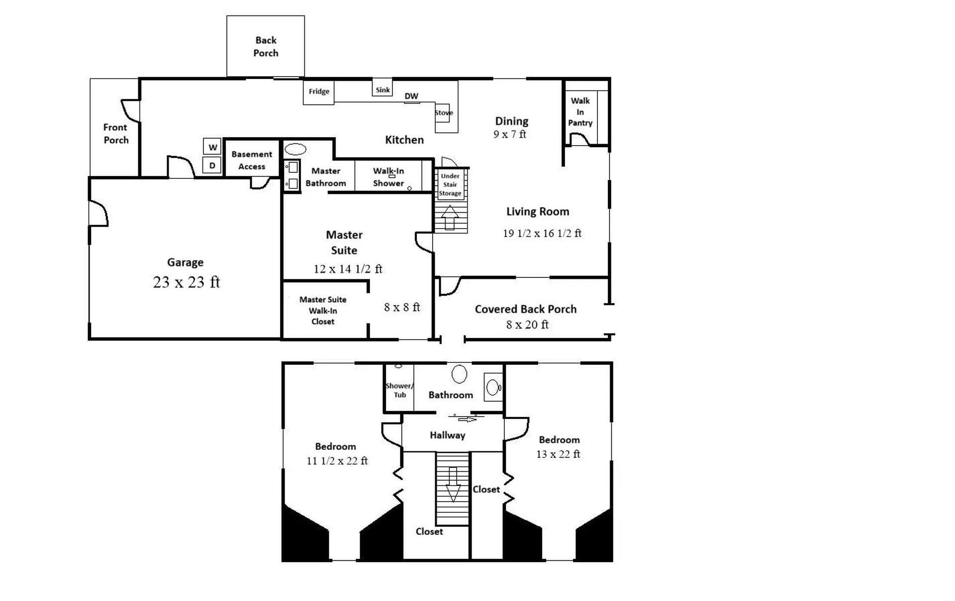
Property Details
Basic Information
- Property Type: Single Family
- MLS Number: 5074867
- MLS Status: Active
- Acreage: 1
- Foreclosure: No
Building
- Property Style: Cape
- Square Feet: 2,196
- Year Built: 2015
- Zoning: Residential
- Stories: 2
- Roof: Metal, Shingle
- Building Construction: Wood Frame, Vinyl Siding
- Foundation: Concrete
- Garage Spaces: 1
Location
- Town: Rumney
- County: Grafton
- State: NH
- Zip: 03266
Finance
- Taxes: $6,032
Interior Features
Bedrooms
- Bedrooms: 3
Bathrooms
- Bathrooms: 2
- Full Baths: 1
Basement
- Basement: Crawl Space
Other
- Floors: Carpet, Vinyl, Wood
Exterior Features
Features
- Parking Description: Auto Open, Direct Entry, Driveway, Garage, Paved, Attached
- Driveway: Paved
Utilities and Appliances
Utilities and Appliances
- Appliances Included: Dishwasher, Dryer, Refrigerator, Washer, Electric Stove
- Heat System: Oil, Hot Water
- Sewer: Leach Field, On-Site Septic Exists, Septic
- Water: Drilled Well, Purifier/Soft
Community
Schools
- Elementary School: Russell Elementary School
- High School: Plymouth Regional High School























































































